Класс:
Бизнес
Домов:
1
Этажность:
4
Технология строительства:
Монолитно-каркасная
Стены:
Газобетон, клинкерный кирпич
Утепление:
Минеральная вата
Отопление:
Индивидуальное газовое
Высота потолков:
3 м
Количество квартир:
7
Паркинг:
закрытый на 1-м этаже дома
Адрес
пер. Кооперативный 1А
Застройщик
Клубный дом “Family Park” - уникальный проект застройщика группы компаний “Инфосервис”. Жилой комплекс представляет собой 3-х этажное здание на 7 квартир со встроенным паркингом. На территории клубного дома выполнен современный ландшафтный дизайн, есть оборудованная закрытая зона отдыха с барбекю, предусмотрена зона гостевой парковки. На участке имеется банный комплекс со сруба с бассейном, настольный теннис.
ЖК “Family Park” - это особенная философия жизни и комфорта, где люди схожих взглядов и ценностей совместно обустраивают свой быт. Важно, чтоб будущие жильцы дома разделяли концепцию проживания в клубном доме с уже имеющимися владельцами квартир в комплексе. И это настолько значимо, насколько каждый человек стремится быть на своем месте, жить в гармонии с собой и своим окружением.
Потенциальные покупатели предварительно познакомятся со своими будущими соседями и с комплексом. Неформальное встреча позволит понять насколько близок им уникальный формат клубного дома. Жители комплекса поделятся собственным опытом и эмоциями проживания в “Family Park”, расскажут о планах его развития в будущем.
Если вам подходит такая концепция жизни, если вы однозначно не хотите жить в шумной коробочной многоэтажке, если покупка частного дома влечет за собой много "подводных камней", на которые нет ни сил, ни времени - звоните нам! Мы лично проконсультируем о всех особенностях и преимуществах уникального клубного дома “Family Park”.
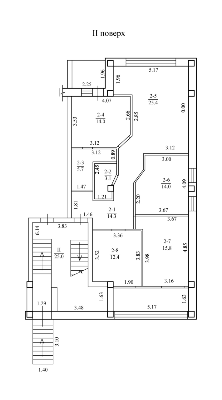
К продаже предлагаются две 3-х комнатные квартиры на втором и третьем этажах. Два сан. узла, собственный подземный паркинг. Состояние: "под чистовую отделку", система "теплый пол". Все работы выполнены из качественных материалов. На участке 20 соток выполнен ландшафтный дизайн, есть закрытая благоустроенная зимняя беседка с камином, домик охраны и садовника. Идеальное уютное место для тихой и комфортной жизни
За подробной информацией по комплексу обращайтесь по тел.: (067) 738-69-61.
ЖК “Family Park” - это особенная философия жизни и комфорта, где люди схожих взглядов и ценностей совместно обустраивают свой быт. Важно, чтоб будущие жильцы дома разделяли концепцию проживания в клубном доме с уже имеющимися владельцами квартир в комплексе. И это настолько значимо, насколько каждый человек стремится быть на своем месте, жить в гармонии с собой и своим окружением.
Потенциальные покупатели предварительно познакомятся со своими будущими соседями и с комплексом. Неформальное встреча позволит понять насколько близок им уникальный формат клубного дома. Жители комплекса поделятся собственным опытом и эмоциями проживания в “Family Park”, расскажут о планах его развития в будущем.
Если вам подходит такая концепция жизни, если вы однозначно не хотите жить в шумной коробочной многоэтажке, если покупка частного дома влечет за собой много "подводных камней", на которые нет ни сил, ни времени - звоните нам! Мы лично проконсультируем о всех особенностях и преимуществах уникального клубного дома “Family Park”.
К продаже предлагаются две 3-х комнатные квартиры на втором и третьем этажах. Два сан. узла, собственный подземный паркинг. Состояние: "под чистовую отделку", система "теплый пол". Все работы выполнены из качественных материалов. На участке 20 соток выполнен ландшафтный дизайн, есть закрытая благоустроенная зимняя беседка с камином, домик охраны и садовника. Идеальное уютное место для тихой и комфортной жизни
За подробной информацией по комплексу обращайтесь по тел.: (067) 738-69-61.
Расположение объекта:
Класс:
Бизнес
Домов:
1
Этажность:
4
Технология строительства:
Монолитно-каркасная
Стены:
Газобетон, клинкерный кирпич
Утепление:
Минеральная вата
Отопление:
Индивидуальное газовое
Высота потолков:
3 м
Количество квартир:
7
Паркинг:
закрытый на 1-м этаже дома
Уманский Александр Евгеньевич
Звоните, я на связи!+380970758819
или оставьте Ваш номер, я перезвоню в течение 5 минут


